Rif: Ci 180
CUVIO
VARESE
Cuvio (VA)
A 5 minuti da tutti i servizi e dei mezzi di trasporto, ma lontano dal caos, con un bellissimo giardino privato e piantumato circa 1450 mq, spaziosa Casa indipendente degli anni '60 da ristrutturare ( tetto recente e solette in buone condizioni), l'immobile è disposto su 2 livelli, ma l'abitazione principale è su un unico livello;
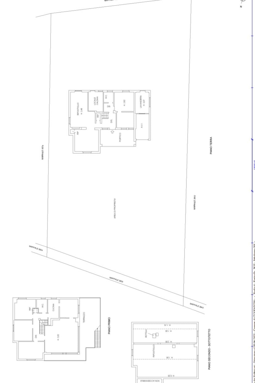
al piano primo troviamo un invitante ingresso che accompagna allo spazioso soggiorno con uscita sul balcone\terrazzo, la cucina abitabile, 2 camere matrimoniali, camera singola e 2 bagni uno con vasca e l'altro con doccia: la scala interna in marmo ci accompagna nella parte semi interrata, dove ci accoglie un box auto, il bagno\ lavanderia, la taverna e 2 locali multiuso e il porticato, precisando che questo piano è accessibile anche con il doppio ingresso separato dall' abitazione principale. L'immobile strutturalmente è ben tenuto, ma con le rifiniture all'epoca della costruzione, gode anche di uno spazio esterno dove si può accedere con altre auto. Possibilità acquisto circa 600 mq di terreno edificabile adiacente alla proprietà. Classe energetica in fase di richiesta.
A 5 minuti da tutti i servizi e dei mezzi di trasporto, ma lontano dal caos, con un bellissimo giardino privato e piantumato circa 1450 mq, spaziosa Casa indipendente degli anni '60 da ristrutturare ( tetto recente e solette in buone condizioni), l'immobile è disposto su 2 livelli, ma l'abitazione principale è su un unico livello;
al piano primo troviamo un invitante ingresso che accompagna allo spazioso soggiorno con uscita sul balcone\terrazzo, la cucina abitabile, 2 camere matrimoniali, camera singola e 2 bagni uno con vasca e l'altro con doccia: la scala interna in marmo ci accompagna nella parte semi interrata, dove ci accoglie un box auto, il bagno\ lavanderia, la taverna e 2 locali multiuso e il porticato, precisando che questo piano è accessibile anche con il doppio ingresso separato dall' abitazione principale. L'immobile strutturalmente è ben tenuto, ma con le rifiniture all'epoca della costruzione, gode anche di uno spazio esterno dove si può accedere con altre auto. Possibilità acquisto circa 600 mq di terreno edificabile adiacente alla proprietà. Classe energetica in fase di richiesta.
Consistenze
| Descrizione | Superficie | Sup. comm. |
|---|---|---|
| Principali | ||
| Immobile - 1° piano | 120 Mq | 120 Mqc |
| Altro - piano terra | 105 Mq | 105 Mqc |
| Box/Garage - piano terra | 15 Mq | 8 Mqc |
| Terreno - piano terra | 1.450 Mq | 145 Mqc |
| Totale | 378 Mqc | |
